
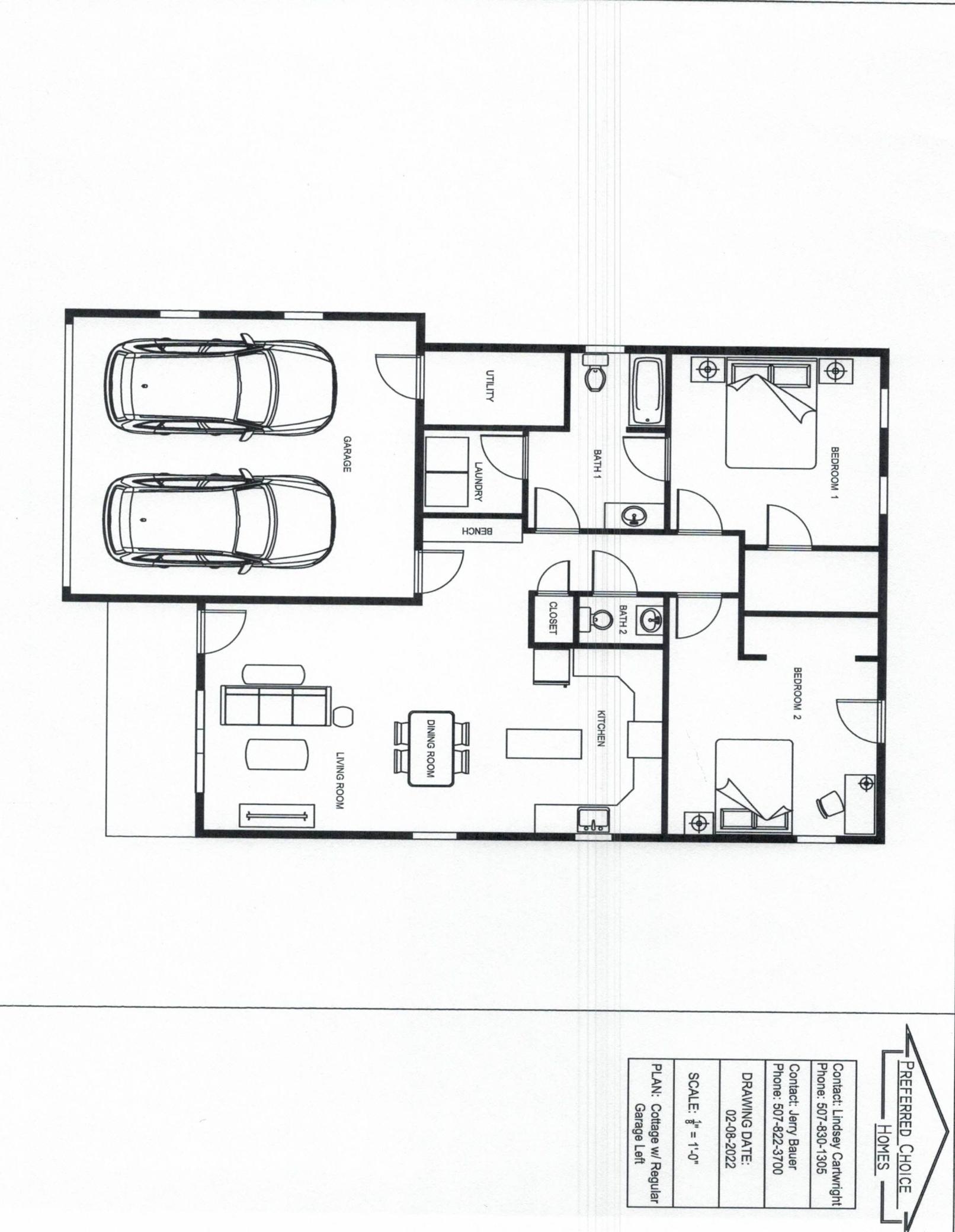
Gove acres is a new 55 plus community development. Under construction and available next spring!! This will be a 2-bedroom, 1-bath, home! No basements to be concerned with. Double attached garage. Completely open floor plan with living, dining and kitchen. The 2 bedrooms are in the back of the townhome. The main bedroom has a walk-in closet. You will also find 1 bath and a separate laundry room. The utility room is accessed from the garage. Enjoy the great outdoors on your covered patio and a back deck. Personalize your home with great finishing options to choose from! Available to you will be a community Clubhouse for special events or just a friendly game of cards. The Windom hospital walking path is also close by. RELAX with all the comforts of living in a planned community with neighbors 55 plus. All yard maintenance is taken care of by property management and a wonderful clubhouse provides an entertainment area for you, your family, and your friends!
Data services provided by IDX Broker
| Price: | 279,900 |
| Address: | 1935 Bud Road |
| City: | Windom |
| County: | Cottonwood |
| State: | Minnesota |
| Subdivision: | Gove Acres |
| MLS: | 6154408 |
| Square Feet: | 1,132 |
| Acres: | 0.117 |
| Lot Square Feet: | 0.117 acres |
| Bedrooms: | 2 |
| Bathrooms: | 1 |