
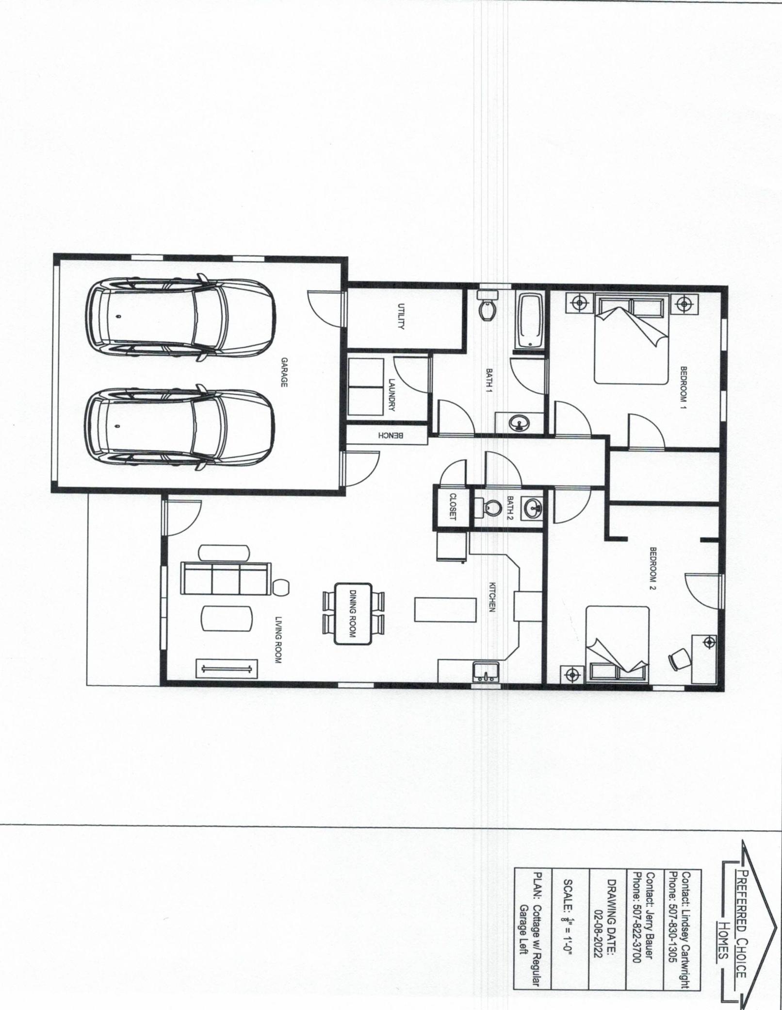
TO BE BUILT! Gove acres is a new 55 plus community development. This will be a 2 bedroom, 2 bath, home! No basements to be concerned with. Double attached garage. You will walk into an open concept living, dining and kitchen setting. The 2 bedrooms are in the back of the townhome. The main bedroom has a walk-in closet. You will also find 1.5 baths and a separate laundry room. The utility room is accessed from the garage. Enjoy the great outdoor on your covered patio and a back deck. Personalize your home with a great finishing options to choose from! Available to you will be a community Clubhouse for special events or just a friendly game of cards. The Windom hospital walking path is also close by. RELAX with all the comforts of living in a planned community with neighbors 55 plus, all yard maintenance taken care of by property management and a wonderful clubhouse provides an entertainment area for you to use for groups small or large.
Data services provided by IDX Broker
| Price: | 279,900 |
| Address: | 1941 Bud Road |
| City: | Windom |
| County: | Cottonwood |
| State: | Minnesota |
| Subdivision: | Gove Acres |
| MLS: | 6154391 |
| Square Feet: | 1,246 |
| Acres: | 0.12 |
| Lot Square Feet: | 0.12 acres |
| Bedrooms: | 2 |
| Bathrooms: | 2 |
| Half Bathrooms: | 1 |